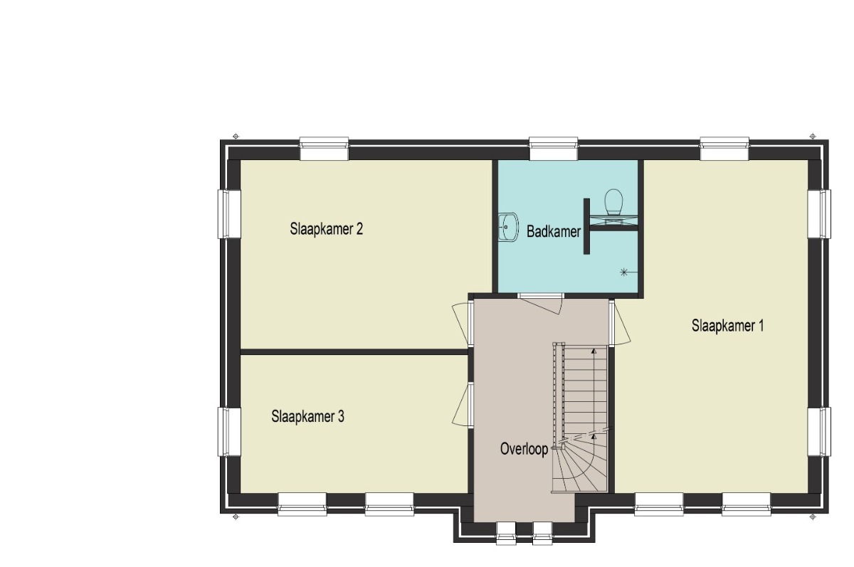
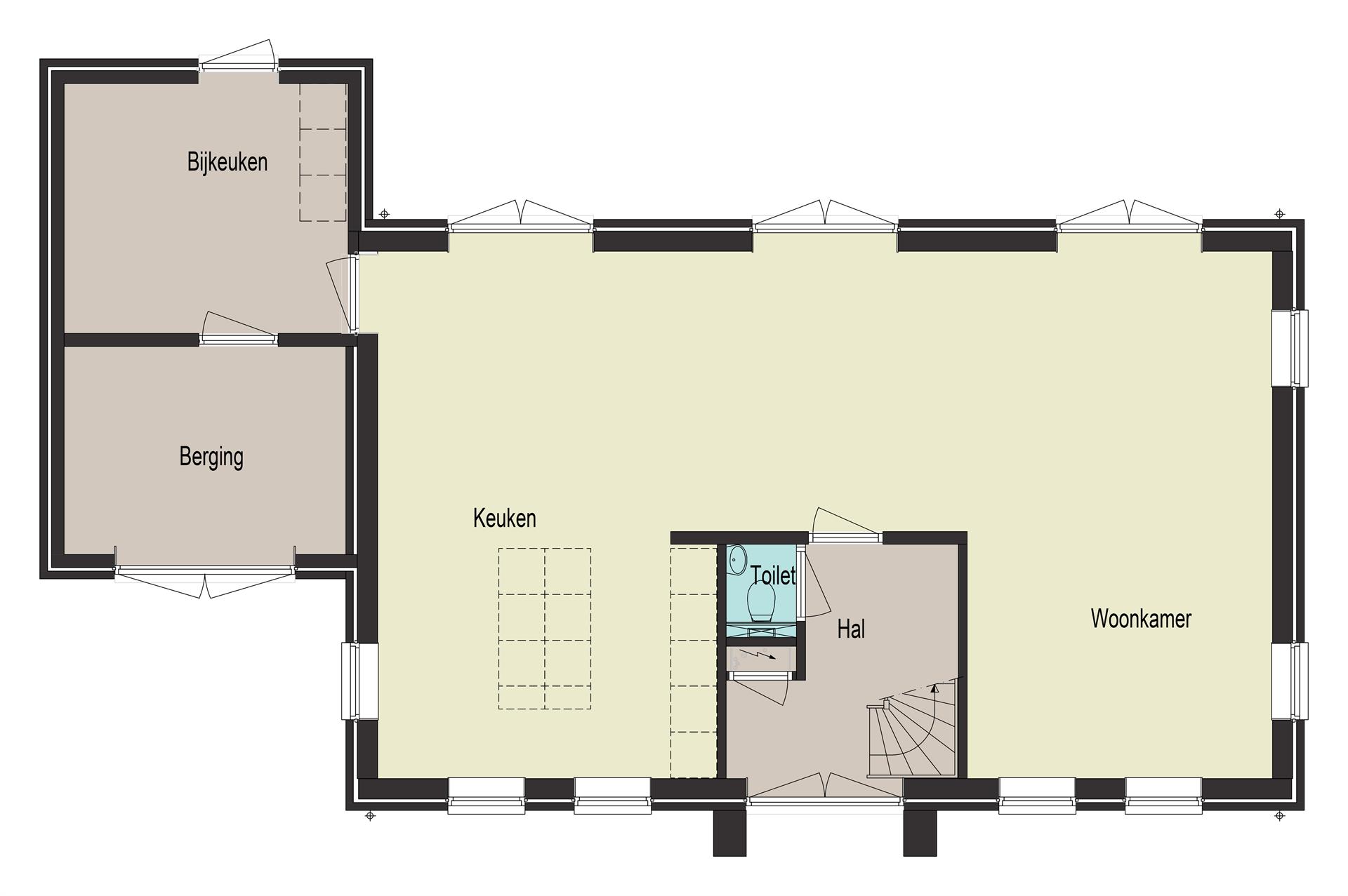
Breedte woning:
7,1 - 7,7 - 8,3 - 8,9 - 9,5 meter
Lengte woning:
11,3 - 12,5 - 13,7 - 14,9 meter

Hidde - rustiek

Hidde is een woning met de allure van weleer. Kenmerkend voor Hidde is de schildkap met hoge gootlijn en de imposante entreepartij. De kozijnverdeling geeft de woning een perfect symmetrische en klassieke uitstraling. Ook de hoeveelheid ruimte op zowel de eerste als tweede verdieping is imposant: kom maar op met je ideeën. Een garage – in enkele of dubbele uitvoering – kan in bijpassende stijl worden aangebouwd. Hidde is een woning waar je je samen met onze architect op kunt uitleven.

Stijlwoning Hidde | Bouwbedrijf Postma

Hidde biedt je de ruimte en de uitstraling van een klassiek herenhuis.

Stijlwoning Hidde | Bouwbedrijf Postma
Stijlwoning Hidde | Bouwbedrijf Postma
Stijlwoning Hidde | Bouwbedrijf Postma
Stijlwoning Hidde | Bouwbedrijf Postma
Stijlwoning Hidde | Bouwbedrijf Postma

Kleine details zorgen voor een bijzondere uitstraling!

 
Button